Architectural Guidelines
If you would like to print this information, please click ARC Guidelines
The next submittal date is Wednesday, February 18 for a February 27 meeting.
SUBMITTAL PROCEDURE:
Application + Fee + 4 full sized paper sets of plans + a scalable PDF of the plans are required.
Send via messenger 4 full sized paper sets of the plans to the CRHOA distributed as follows:
- One set should be sent to: Richard Blumenberg at 11500 Olympic Blvd, Suite 400, Los Angeles, CA 90064. Receptionist line: 310-312-4540.
- One set should be sent to: Zhila Ross, 1331 North Bundy Dr., Los Angeles, CA 90049
-
2 sets should be sent to Emily Lawrence at 693 Amalfi Drive, PP, 90272. (It’s ok to leave on the front porch on submittal day; otherwise call 310-454-5245 for arrangements.)
Do not deliver to 17933 Castellammare Drive or Richard’s Pacific Palisades office on Sunset. Both were destroyed in the Palisades Fire. Also, do not mail anything to theCRHOA’s Pacific Palisades Post Office Box, which currently is not operational.
See link for 2025 submittal deadlines and meeting schedule. Zelle is accepted for minor and smaller fee projects, admin@rivierahomeowners.com. 2025 ARCHITECTURAL REVIEW MEETING DATES. To help with your submittal process, please use the attached checklist: CRHOA PLAN SUBMITTAL CHECKLIST.
Fast-growing hedge materials are no longer allowed in the front of the property. Click the link for suggested plant materials that would be accepted in the front or feel free to suggest your own. RECOMMENDED PLANT LIST – FRONT
See DWP requirements for the transformer electrical/switchgear closet. 25′ from the transformer, doors open out, 3 ft deep by 6 ft. tall by 8 ft wide. It cannot be in the 10′ side yard setback. Must show this location on your initial plan submittal.
See additional Survey requirements for submittal and after the start of construction below.
INTRODUCTION
The “Architectural Guidelines” set forth many of the covenants, conditions and restrictions (“CC&Rs”) applicable to property within the California Riviera Home Owners Association (“CRHOA”) tracts. The CC&Rs require that plans be approved by the Architectural Review Committee (“ARC”) prior to the start of any construction. Start of construction means demolition, grading or building, whichever occurs first. The CC&Rs direct the CRHOA* to “interpret and enforce all CC&Rs” and state that the CRHOA ‘s “interpretation is final and conclusive.”
If you are planning to remodel, build a new house, install a fence or other accessory structure, re-roof, add solar panels or landscape your property, an application and worksheet must be filed with the CRHOA and approval must be received prior to the start of construction. All projects require a final site visit and approval at completion of project.
Note: An increase of the existing structure’s square footage by 50% or more, or an alteration or demolition of more than 50% of the existing exterior walls, requires that all elements of the property (including hedges, fences, pool, HVAC and other equipment) be brought into conformance with the current Architectural Guidelines.
There are two types of applications, one for Major projects and one for Minor projects.
Major projects include: demolition, new construction, remodels, addition, any exterior alterations or the addition of an accessory structure.
Minor projects include: landscape, hardscape (or re-landscape or re-hardscape) of the front, side or rear of a residence, or adding a pool, spa or other structure anywhere on the property; re-roofing (include material, weight and color); solar panels; exterior lighting (lighting plan to be added to exterior elevation plan); fences, hedges, walls or gates; replacement of doors and/or windows; and addition or modification of other exterior improvements, including an exterior fireplace, barbecue or food preparation area, fountain, trellis, tennis court or sports court, air conditioning compressors, solar panels or pool equipment.
No application is required for interior renovation that does not change the exterior in any way or add square footage. However, written notice of interior remodeling is to be provided to the CRHOA prior to beginning work.
To further assist you, we are providing the guidelines as they appear in the CC&Rs with further interpretations and clarifications in bold type. Additionally, the following issues sometimes generate confusion and are addressed here:
- Conformity is required to current CRHOA architectural standards guidelines. Restrictions on fence height and building height at side yard setback, for example, were objectively defined and recorded in 1991. You may see homes that are currently nonconforming to the 1991 guidelines, but current guidelines set forth the standards that are adhered to today; and plans submitted for approval must conform to current standards.
- Existing nonconforming improvements do not constitute a basis for granting approval of any new nonconforming improvements.
- No application is required for an interior renovation which does not add square footage, but do provide notice to the CRHOA before beginning substantial interior work, even though plans for it do not require approval by the ARC.
- A survey is required to be submitted with the plans for any project that increases a building’s height, footprint or square footage or that adds a fence, wall or gate, or that alters the grade of the lot; and a supplemental survey showing the completed improvements on the lot may be required upon completion of the improvements.
- Plans may be filed with the city at the same time plans are submitted to the ARC. However, demolition and construction may not begin until the ARC has reviewed and approved the plans.
- Hardscape plans (including the driveway, walkways, walls, fences, gates, pool, pool equipment, BBQ, outdoor kitchen, fireplace) must be submitted with the original plans for construction. Owners are encouraged to submit landscape plans and a plant plan with the original submission. If not submitted and approved then, they must be submitted, together with any revisions to hardscape plans, prior to the beginning of hardscaping or landscaping, whichever occurs first.
- In some respects, the requirements of CC&Rs are more stringent than the requirements of the City of Los Angeles, in which case the CC&R requirements prevail. Similarly, a variance granted by the City of Los Angeles does not alter or supersede any of the CC&R requirements or override any plan approval given by the ARC.
- No structures, including chimneys, pop-out windows, water heaters, electrical cabinets, transformers (must be buried in a vault), air conditioning units and condensers, pool equipment, fireplaces or built-in seating are allowed within any setback area. Barbecues, pizza ovens or outdoor kitchens are not allowed within any setback area (unless a variance therefor has been granted by the ARC in a particular case under Section 6c of these Guidelines)
- Window guards, bars, roll down shutters and exterior lighting must be shown on plans and will be evaluated by the ARC as part of the plan review process. Submit solar panel plan.
- Landscape Design: When a property is newly constructed or remodeled, hedge, fence and wall height requirements are strictly enforced and any preexisting non-conforming condition must be brought into conformity with current standards. The City of Los Angeles limits the height of front fences, hedges, walls, gates, etc. to 42”. The ARC follows those same standards but will consider a request for a variance from the 42″ height limit on front fences, hedges, walls and gates as follows: Height shall be under a sloped height envelope starting at 3’- 6” high at the front property line and sloping upward to 6 ft. high at an 8 ft setback from the front property line. A gate, fence, or wall may be solid up to 4 ft. high, and the top (above 4 ft.) must be an open design, such as wrought iron. Setback is measured from the property line, not the sidewalk or curb. A variance will also be considered for lighting to be higher than the top of the column, on which the lighting is to be located. Pillars, columns and posts shall be no more than 24″ in width, and a maximum of 6 inches above the wall, fence and gate height. The property line and any curb and/or sidewalk must be shown on plans, and dimensions between the property line and curb must be provided at each side and the middle. Landscape material from the front property line to the curb (or street) must be maintained at less than 42” in height (other than approved trees); and a clear area surfaced with a walkable material such as grass, decomposed granite or other suitable material is required in the first 3’ from the curb or street back toward the front property line. Hedges are not allowed between the curb or street and front property line and are subject to the height limitations noted above. Only slow growing hedges are allowed within the front house setback area. See attached Fence/Wall/Gate/Hedge Maximum Heights diagram below for allowable heights and other requirements.
- Chain link or chicken wire fencing is not allowed forward of the front of the house. When used in the rear or rear side yard of the property, any such fencing must be clad with black or green vinyl.
Please refer to the Architectural Guidelines that follow for more on setbacks and landscaping.
Architectural Guidelines
1. Acceptable Roofing Materials: Wood shingle or shake, clay, concrete, tile, slate, cal-shake or fiberglass shingles graded 280 pounds or above in a color compatible with the house and the neighborhood. If the fiberglass shingle material is to be used, a sample of roofing material is to be submitted for approval. The Architectural Review Committee may approve other roofing material if, in its sole discretion, it is compatible with the neighborhood.
- A minor project application is required to re-roof.
- Specify the weight, color & material to be used and submit a brochure that provides a photograph of the material installed, instead of an actual shingle.
2. Architectural Character: Except for where the remodeling is so extensive as to change the entire architectural character of the house, all remodeling of an existing house and/or additions thereto shall conform architecturally to the character of the existing house. All new construction, as well as remodels, shall be compatible with the architectural character of the neighborhood. A single plane facade should be avoided. Facade sculpting and appropriate detailing to the architectural style is encouraged (i.e., 35% of frontage at 30′ setback; 35% at 35′; 30% at 40′). When considering the appropriateness of any proposed design, particular attention will be given to color, texture and materials and the relationship to the surrounding residences.
The goal of this requirement is to minimize the feeling of mass, bulk and volume of a residence or structure. A design where the second floor has less square footage than the first floor is preferred to increase the articulation of the project.
The paved area in the front setback shall be no more than 50% of the front setback area, including the paved driveway. No more than two (2) driveways are permitted.
3. Skylights or Solar Panels: These are not acceptable if they can be seen from any street.
Skylight framing and flashing must be compatible in color with the roof and present as low a silhouette as possible. Bubble skylights are not allowed. Submit solar panel plan.
4. Camouflaging: Unacceptable architectural design camouflaged with foliage will not be allowed.
5. Landscape Design: Landscaping may be required to minimize loss of privacy to neighbors due to new or remodel construction. The Architectural Review Committee will require appropriate screening by trees, hedges, walls or fences when necessary, however they must adhere to the height limitations noted in the guidelines.
Hedges and thick shrubbery are treated as fences or walls and are subject to the same restrictions. Please refer to paragraph 11 below and the attached Fence/Wall/Gate/Hedge Maximum Heights diagram for allowable heights and other requirements. Any exterior lighting plan must be included as part of the landscape and hardscape plan submission. For setbacks and other requirements regarding barbecues, pizza ovens and other outdoor food preparation areas, see paragraph 6 below. For those regarding pools and spas and their equipment, please refer to paragraph 14 below.
Mature trees give the Riviera much of its character and that should be taken into account in any landscaping plan. Consultation with the ARC is required before removal of such trees in connection with demolition, new construction and/or remodeling.
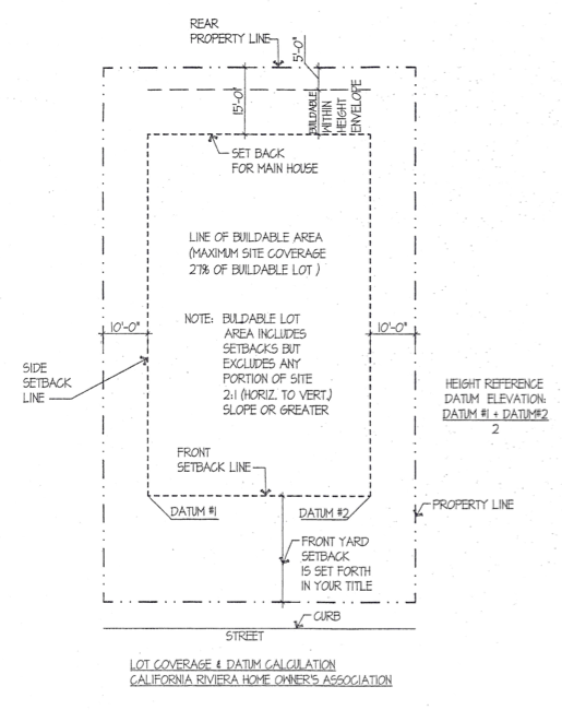
6. Building Envelope: The building envelope shall be the volume in which a structure, other than fences and walls, may be constructed within the Riviera. A schematic drawing showing the below guidelines is attached.
a. Front Yard Setback: Generally 30′ minimum from front property line or as specified elsewhere in the CC&Rs.
Property lines must always be shown on plans, whether new construction, remodel or landscape, as must the location of the curb (or edge of street where there is no curb) and the distance between the front property line and the curb/edge of street. The area from the front property line to the curb or street is City property. This area must be kept clear of fences, gates, walls and hedges. A walkable material such as grass or decomposed granite must be used in the area along the curb or street and this walkable surface must extend 3’ back toward the front property line. Landscape material from the front property line to the curb or street must be maintained at less than 42” in height, other than approved trees, which cannot be planted in the 3’ walkable strip area along the curb or street. Transformers must be buried in a vault and location shown on plans.
b. Rear Yard Setback: No structure may be constructed within five feet (5′) of the rear yard property line or as specified for each lot in the CC&Rs, whichever is greater. In addition, the setback shall be 15′-0″ for all portions of construction above 8′-6″ as measured from the natural grade 15′-0″ from rear setback line. Construction may take place in the rear 15′-0″ setback area within a volume of 6′-0″ above the rear setback line extending at a 6:12 pitch upward toward the previously defined 15′-0″ rear yard setback. One story outbuildings or garages not exceeding 30′-0″ in width, 21′-0″ in depth and 13′-0″ in height at their center point, detached from the main structure by 10′-0″ or more, are permissible subject to review by the Architectural Review Committee. Such outbuildings or garages shall be in the rear one-third of the lot and shall not be built within the setback specified herein.
c. Side Yard Setback: 10′-0″. Chimneys, fireplace structures or other appendages may not protrude into the setback.
No chimneys, balconies, HVAC units, electrical cabinets, pool equipment, transformers (must be buried in a vault), water heater closets, storage sheds, greenhouse, pop-out or bay windows, fireplaces, built-in seating or other permanent structures are allowed within the setbacks. Barbecues, pizza ovens and outdoor food preparation areas are also not allowed within any setback area unless a variance permitting that has been granted by the ARC in a particular case. The ARC will consider a request for a variance from the 10 ft. setback rule in side yards for: (i) driveways, (ii) light wells and access ways located at and below grade to serve basement spaces, (ii) barbecues, pizza ovens and other outdoor food preparation areas that do not include a fireplace or chimney, and (iv) swimming pools and spas, but any such installation (including, in the case of food preparation areas, the work area for its use) must be at least 5 ft. from the side and rear property lines. Side yard setback extends from the front property line to the rear property line. Roof eaves may be permitted to encroach into the setback at the discretion of the Architectural Review Committee
d. Height: No more than two (2) stories, 22′-0″ at the above-described front, side and rear yard setback lines, extending upwards into the building envelope as follows: from the front and rear setback lines, the 22′-0″ maximum allowed height may extend upward at a 6:12 pitch toward the center of the property to the defined maximum center height.
From both the side yard setback lines, the 22′ maximum allowed height may extend upward at an 8:12 pitch toward the center of the property to the defined maximum center height.
Chimneys are allowed to extend a maximum of two feet (2′) above the defined maximum center height. No building appendages other than chimneys are allowed to extend above the defined maximum center height.
No basements or subterranean garages visible from the street are permitted if they create an appearance of more than two (2) stories.
Basements and subterranean rooms or garages are not considered a story nor are they counted toward the square footage of the house if the first floor is 18″ or less above natural grade. No basement or subterranean room windows may face the street and no subterranean rooms are to be visible from the street. No subterranean garage doors may face the street. Habitable attics or lofts above the second story are prohibited. Habitability is judged by access. Pull-down stairs or wall-mounted ladders are acceptable for attic spaces. Roof decks above the 2nd floor are not allowed.
A Drawing showing the allowable Height Envelope is attached. The allowable Height Envelope shall be shown on plans submitted for construction of a new structure or an addition to an existing one.
e. Height Reference Datum Elevation: The average of two natural, unmodified grades existing at the intersection of the front yard setback line and the two side yard setback lines.
The Height Reference Datum Elevation shall be shown on plans submitted for construction of a new structure or an addition to an existing one. (See attached diagram below).
f. Maximum Center Height: The maximum center height shall be defined by the area of the lot in the following manner:
28′ for lots 9,000 square feet in area and under;
30′ for lots above 9,000 square feet, but not more than 15,000 square feet;
32′ for lot area more than 15,000 square feet.
Lot areas for application of these formulas shall be adjusted downward for any portion of the lot which is not buildable.
Maximum Center Height is measured from the Height Reference Datum Elevation to the top of the roof or the top of the parapet, whichever is higher.
7. Roof: No roofs with pitch of less than 3″ in 12″ to an extent of more than 25% of the total surface. Any flat portion shall not be visible from the street.
Roof decks above the 2nd floor are not allowed.
8. Antennae; Roof Appliances: Except for standard size television antennae, no towers, antennae, aerials, satellite dishes or tower facilities for the reception and/or transmission of radio, television broadcasting or other means of communication shall be constructed, installed and maintained upon any lot except by installations inside the structure or underground conduits.
No mechanical equipment shall be placed on a first floor roof. Mechanical equipment on a 2nd floor roof shall be within a roof well so as not to be visible from neighboring properties, and any such equipment must be screened and sound proofed. Roof vents and flashing must be compatible in color with the roof, present as low a silhouette as possible and, to the extent practicable, should be limited in number and located so as not to be visible from the street.
9. Maximum Site Coverage/Maximum Square Footage: No structures of any kind may cover more than 27% of the Buildable Lot Area. The total square footage of all structures shall not exceed 50% of the Buildable Lot Area. Buildable Lot Area shall include all yard setback areas, but shall not include those portions of the lot that have an existing slope of 2 horizontal to 1 vertical or greater.
For the purpose of both Maximum Site Coverage and Maximum Square Footage, the total square footage includes the main house, any accessory buildings, garages, chimneys, and the exterior walls. In addition, the total square footage includes 100% of the area of patios, terraces or similar spaces that are covered by a habitable second story. Terraces, first floor roof decks, trellises and similar spaces that are covered by a solid roof or are enclosable are counted as full area if open less than 50%. Such spaces open greater than 50% are counted as half area. Any space or room that has a ceiling higher than 14 feet is counted twice for the purpose of Maximum Square Footage. Stairways are counted twice. Basements and subterranean rooms or garages are not counted toward the square footage of the house if the first floor is 18″ or less above the natural grade.
10. Minimum Lot Frontage: 100 feet.
The CC&R’s contain provisions restricting the division of original lots as shown on the recorded California Riviera tract maps and also concerning construction on property that is more or less than an original lot. Those provisions should be reviewed, and the CRHOA consulted before attempting to subdivide Riviera property and before preparing plans for construction on other than an original Riviera tract lot.
11. Fences, Hedges and Walls: All fence, hedge, and wall heights shall be no greater than 42″ within 5’ of the front yard property line and the right of way, 6′ in the rear and side yards, and 6′ for pool enclosures. (See attached diagrams below).
The City of Los Angeles limits the height of front fences to 42″ and defines a fence as follows: “…the terms ‘fence’ and ‘wall’ shall include latticework, ornamental fences, screen walls, hedges or thick growths of shrubs or trees. Fence and wall height shall be measured from the natural ground level adjacent thereto.” The CRHOA requires conformance to this standard.
The ARC will consider a request for a variance from the 42″ height limit on front fences (including walls, gates and hedges) as follows: A variance will be considered for lighting higher than the top of the column, fence or wall on which the lighting is to be located. A fence, gate or wall shall be no higher than 3’-6” at the front property line and under an envelope that slopes upward to 6 ft high at an 8 ft. front setback. The bottom 4 ft. may be a solid design, and any portion above 4 ft. must be an open design, such as wrought iron. Pillars, columns, and posts shall be no more than 24″ in width and length, and up to 6 inches above the fence, wall, or gate height. Hedges must be maintained at the specified height. Fast-growing hedge material is not allowed between the front property line and the structure setback. Examples (not limited to) are Ficus, Podocarpus, Eugenia, Privet, Bamboo, Carolina Cherry, Bay Laurel, and Japanese Blueberry. Side yard hedges and/or fences must step down in the front and adhere to the front yard height guidelines. Hedges, including side yard hedges, are not allowed between the front property line and the curb or street.
Chain link or chicken wire fencing is not allowed forward of the front of the house. When used in the rear or rear side yard of the property, such fencing must be clad with black or green vinyl. Unfinished concrete walls are not allowed.
Landscaping material in the City-owned area from the property line forward to the curb or street must be maintained at less than 42” in height (other than approved trees); and a clear area surfaced with a walkable material such as grass, decomposed granite, or another suitable material is required in the first 3’ from the curb or street back toward the front property line. (It does not need to be a separate path as long as it’s walkable). See the attached Fence/ Wall/Gate/Hedge Maximum Heights diagram for allowable heights and other requirements.
12. Garages: No more than a three-car garage shall be permitted. Interiors of street-facing garages must be plastered and finished. Carports facing the street must be walled into ceiling line or, if open, it must be screened from view from street in a manner satisfactory to the ARC; in both cases the interior, as far as it will be visible from the street, is to be finished.
Parking availability may be increased by designing tandem parking.
13. Guest House: Maximum of 600 square feet with no carport, garage or cooking facilities.
A guest house should be architecturally compatible with the main house. As noted above, a guest house counts toward the total square footage and site coverage limits. One-story outbuildings or garages not exceeding 30′-0″ in width, 21′-0″ in depth and 13′-0″ in height at their center point, detached from the main structure by 10′-0″ or more, are permissible within square footage and site coverage limits, subject to review and approval by the Architectural Review Committee. Such outbuildings or garages shall be in the rear one-third of the lot and shall not be built within the setbacks specified herein.
14. Swimming Pools and Spas: Equipment to be screened by planting or fence.
Pools and spas must be located in the rear yard and at least 5′ from the property lines (measured from the outside of the pool or spa). Fencing shall be as required by the City of Los Angeles. No pool or spa equipment can be located within the side and/or rear yard setbacks. The location of pool and spa equipment must be shown on plans submitted for approval. In selecting and locating such equipment, consideration shall be given to the effect on neighboring properties of noise the equipment produces, and appropriate shielding or sound reduction methods must be used.
15. Tennis and Sport Courts: Cannot be built within the setbacks and must be screened and landscaped. Fences must be approved.
Lighting shall conform to Los Angeles City Code, must be directed toward the interior of the site and must be of a type that will not disturb neighbors. Details of lighting to be used (including location, height of standards, manufacturer and other specifics) must be included with plans submitted for approval.
16. Satellite Dishes: Cannot be placed within setback. Must be unobtrusive to neighbors and screened by landscaping. Cannot be visible from street.
The Architectural Review Committee will not approve a giant satellite dish. We will consider the hidden installation of a dish 18″ or smaller.
For additional diagrams click here: ARC Guidelines Diagrams
SURVEYS:
FOR SUBMITTAL: CRHOA Required Survey, Slope Band Analysis, and Site Plan
A fully dimensioned certified survey, prepared by a certified land surveyor, must be
included with your submission, which survey must show: (1) the entire property and areas
adjacent to it (and must include outlines of all structures and improvements currently
existing on the property), with dimensions from the outside corners of all structures on the
property to property lines; (2) spot elevations and labeled contour lines; (3) all sidewalks,
driveways, patios and other hardscape; (4) all walls and fences, with heights, whether on
the property itself or adjacent to it; (5) an outline of the adjacent sides and corners of
structures on the adjacent properties and their distances to the boundary line between
the two properties; (6) the City-owned parkway in front of the property, from the street/curb
to the front property line(s), with dimensions from the front property line to the street side
of the City standard curb, if any, adjacent to the street (or if no City standard curb, to the
equivalent; or, if none, to the street paving), at: (a) each front corner of the property, (b)
at or adjacent to each driveway and each pedestrian entrance, and (c) near the center of
the front property line(s) if that is not near one of the above required dimensions; (7) all
easements, if any, and the surveyor’s source of the information about them; (8) any
encroachments affecting the property; (9) the size, in square feet, of the property; (10)
the building setbacks required under the California Riviera CC&Rs and Architectural
Guidelines with respect to the property as to which the submission is being made; (11)
the dates of the field work for the survey, of the survey itself and of its certification; and
(12) who prepared the survey and for whom it was prepared.
The site plan and other plans submitted must be based on that survey; and the site plan
must show, among other things, the points from which the height datum for the property
was determined.
In addition to that survey, a certified slope band analysis map, prepared by the certified
surveyor, is required for all projects on properties that include slopes that are 2:1 or
steeper (which sloped areas are excluded from the ”Buildable Lot Area” of the property
pursuant to Paragraph 9 of the CRHOA Architectural Guidelines and CRHOA CC&Rs for
various purposes), showing areas of the lot with a slope less than 2 horizontal to 1 vertical,
areas of the lot sloped 2:1 or steeper, and the square footage of each such area.
In the case of a corner property, the Site Plan and all landscaping and hardscaping plans
must show the “visibility triangle” as defined in Section 62.200 of the Los Angeles
Municipal Code.
AFTER THE START OF CONSTRUCTION:
The Association approves, documents, and monitors construction in the California Riviera Tract, acting through its Architectural Review Committee (“ARC”). An as-built survey is required at the completion of the foundation and then again after framing.
To document that and to confirm that the work conforms to the ARC-approved plans for the project, please submit an updated fully dimensioned as-built survey of the property, prepared by a licensed land surveyor, showing the location and dimensions of:
(a) the as-built foundation/basement walls/slab for each structure on the property;
(b) any light wells;
(c) any stairs or ramps serving any subterranean level;
(d) any retaining walls; and
(e) any property perimeter walls (or any foundations for them if the walls themselves have not yet been constructed);
including, for each segment: (i) the elevation of the top of that foundation wall, slab, or other feature; (ii) the distance from the exterior of that foundation, slab, or other feature to the applicable CRHOA required setback line(s) and to the property line(s) adjacent to that segment; and (iii) if there is a basement, the elevation of the top of the basement slab.
Also, when you have completed framing, you will need to submit an updated fully dimensioned as-built survey of the property prepared by a licensed land surveyor, showing, among other things:
(a) the location of all structures on the site, with distances from each exterior wall of each structure to the CRHOA required setback line(s) and property line(s) adjacent thereto;
(b) the location of each porch, balcony, and covered patio, with distances from each to the CRHOA setback line(s) and property line(s) adjacent thereto;
(c) the elevation of each portion of the first floor of each structure (including the elevation of the garage floor and of any covered patio);
(d) the elevation of the eaves and the distance from each eave to the structure and to the CRHOA setback line(s) and property line(s) adjacent thereto;
(e) the location (relative to the CRHOA setback line(s) and adjacent property line(s)) and the elevation of the roof at its intersection with top plate of the second story of the structure;
(f) the location (relative to the CRHOA setback line(s) and adjacent property line(s)) and the elevation of the highest portion of the roof; and
(g) the location (or, if not yet installed, the designated location) of all pool equipment, AC and other condensers, heat pumps, generators, electrical panels and other exterior equipment, and the distance from each to the CRHOA setback line(s) and property line(s) adjacent thereto.
